english Version
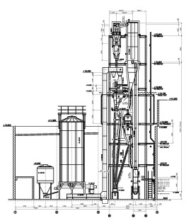
BTL Versuchsanlage

Auftraggeber: Lurgi GmbH