english Version
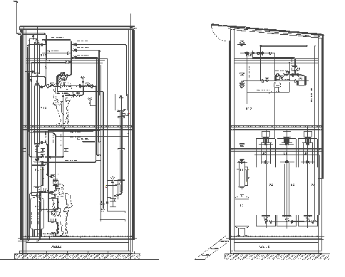
Pilotanlage Tjeldbergodden

Versuchsanlage der Lurgi Öl-Gas-Chemie GmbH